- 東京都
- 医療モール物件
(仮称)メディカルモール長原駅前(東急池上線)
【東急沿線 徒歩3分】2026年秋OPENの新築医療モールです!
- 300003736
- 2026年03月10日更新
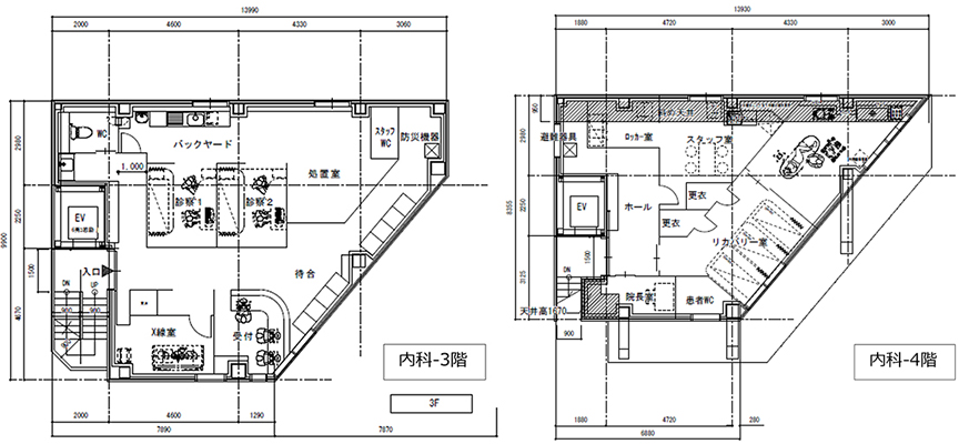
- 内科
- 小児科
- 産婦人科
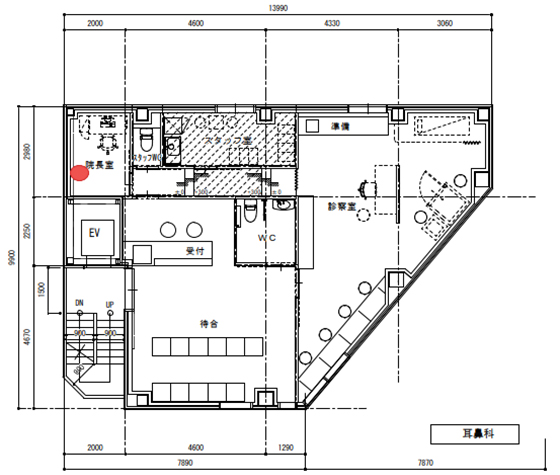
- 耳鼻咽喉科
- 泌尿器科
- 皮膚科
- メンタル
この物件のPRポイント
- 商店街のメインストリート沿い角地に位置し、地域住民に認知されやすい好立地です。
- 当該地周辺は人口増が続いており、500m圏内に約1.6万人、1km圏内に約6.3万人の魅力的なマーケットです。
- 周辺に医療機関が非常に少なく、医療ニーズの高いエリアです。
- 医療専門区画のため、開業による初期投資を抑えることができます。
- 希望面積が30坪以上の場合は、2フロアにて開業いただくことも可能です。
物件概要
不動産情報
| 募集状況 | 募集中 |
|---|---|
| 物件区分 | 医療モール物件 |
| 物件形状 | ビルテナント |
| 募集科目 | 内科、小児科、産婦人科、耳鼻咽喉科、泌尿器科、皮膚科、メンタル |
| 所在地 | 東京都大田区上池台1丁目 |
| 交通アクセス | 東急池上線「長原」駅より徒歩3分 |
| 延床面積 | 2階:約31坪 3階:約31坪 4階:約24坪 ※30坪以上をご希望の場合、3階と4階の2フロアで開業することも可能です。 |
| 土地面積 | - |
| 建物構造 | 鉄骨造 |
| 階数 | 4 階建て |
| 駐車場 | 0 台 |
取引条件
| 賃料 | 2階:17,500円/坪(税別) 総額:544,250円/月 3階:17,000円/坪(税別) 総額:528,700円/月 4階:16,500円/坪(税別) 総額:402,600円/月 |
|---|---|
| 賃貸借条件コメント | 契約期間:20年(定期建物賃貸借契約) |
| 取引種別 | 賃貸 |
| 取引態様 | 媒介 |
募集区画
延床面積算定図

内装図案


診療圏調査
- 500m商圏で夜間人口16,000人超は都内でも魅力的なマーケットです。
- 泌尿器科、心療内科、婦人科の推定患者数は何れも100人越え!(詳細はお問合せください)
- 長原駅南側には心療内科・耳鼻科が無い為、おススメです。
昼間人口
| 単位:人 | 1次 (半径0.5km) |
2次 (半径1km) |
|---|---|---|
| 総数 | 10,329 | 43,333 |
| 男性 | 4,703 | 19,209 |
| 女性 | 5,627 | 23,124 |
夜間人口
| 単位:人 | 1次 (半径0.5km) |
2次 (半径1km) |
|---|---|---|
| 男女計総数 | 16,403 | 63,079 |
| 男女計15歳未満 | 1,755 | 7,112 |
| 男女計15歳~64歳 | 11,004 | 42,343 |
| 男女計65歳以上 | 3,644 | 13,624 |
医療機関数
| 単位:件 | 1次 (半径0.5km) |
2次 (半径1km) |
|---|---|---|
| 内科 | 6 | 17 |
| 心療内科 | 1 | 2 |
| 小児科 | 0 | 5 |
| 皮膚科 | 0 | 7 |
| 泌尿器科 | 0 | 0 |
| 婦人科 | 0 | 1 |
| 耳鼻咽喉科 | 0 | 3 |
| 眼科 | 1 | 3 |
当地推計患者数(夜間人口)
| 単位:人 | 1次 (半径0.5km) |
2次 (半径1km) |
|---|---|---|
| 内科 | 43 | 64 |
| 心療内科 | 49 | 128 |
| 小児科 | 83 | 56 |
| 皮膚科 | 90 | 43 |
| 泌尿器科 | 54 | 206 |
| 婦人科 | 143 | 270 |
| 耳鼻咽喉科 | 76 | 75 |
| 眼科 | 36 | 68 |
マップ
エリア情報
アクセス
■東急池上線 長原駅より徒歩3分の「ぱすてる長原商店街」に面した、視認性抜群の医療モールです。
■駅と住宅街を繋ぐメインストリートに位置しており、地元住民が行き交っています。
■1日あたりの駅乗降客数 東急池上線 長原駅:約14,500人
<長原駅>
東京駅から最短35分
五反田駅から最短10分
蒲田駅から最短16分
生活・暮らし
■小池公園・・・長原駅徒歩4分
溜池の雰囲気を復元した公園です。水辺環境を活かし、身近な生き物との共生をテーマに整備しており、季節により野鳥の子育ての様子、カワセミなどが見られます
■洗足池公園・・・洗足池駅徒歩5分
今現在もサクラや紅葉、豊かな緑で彩られ、四季折々の表情を見せます。池の周りには池月橋、勝海舟夫妻墓所など、見どころがたくさんあります。
教育環境
長原駅周辺の小学校は
「大田区立赤松小学校」
「大田区立小池小学校」
周辺の中学校は、
「大田区立大森第六中学校」
「大田区立貝塚中学校」
などとなります。
近くには、
「上池台小池公園」
「洗足区民センター」
などの公共施設があります。
ショッピング
長原駅にはスーパー「東急ストア」や100円ショップ「ザ・ダイソー」が直結しています。長原駅周辺には米屋・豆腐屋など昔ながらのお店が並ぶ「ぱすてる長原商店街」。そこはレンガ舗装されていてとてもおしゃれな雰囲気です。北側方面には毎日がお買い得日のスーパー「オリンピック」があります。








