- 大阪府
- その他開業物件
メディカルプラザ香里新町
【寝屋川市】耳鼻咽喉科・眼科・皮膚科など募集!! 開業テナント情報 最寄り駅より徒歩3分の好立地☆
- 300002620
- 2023年08月14日更新
- 整形外科
- 眼科
- 耳鼻咽喉科
- 皮膚科
物件概要
不動産情報
| 募集状況 | 募集中 |
|---|---|
| 物件区分 | その他開業物件 |
| 物件形状 | ビルテナント |
| 募集科目 | 整形外科、眼科、耳鼻咽喉科、皮膚科 |
| 所在地 | 大阪府寝屋川市香里新町22-6 |
| 交通アクセス | 京阪本線「香里園」駅から徒歩3分程 |
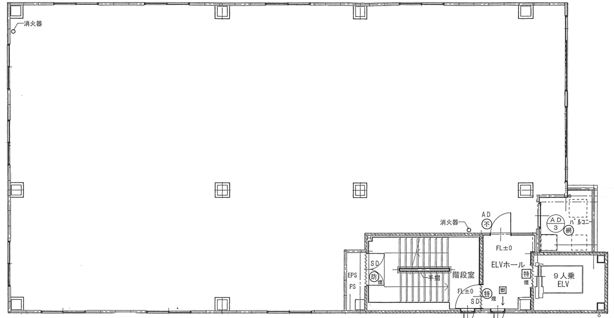
| 延床面積 | 2階 243.2㎡(73.56坪) ※一括・分割とも相談可能 |
| 土地面積 | - |
| 建物構造 | 鉄骨造 |
| 階数 | 4 階建て |
| 駐車場 | 0 台 |
取引条件
| 賃料 | 賃 料 月額814,000円(消費税税込み、共益費込み) 管理費 月額 56,980円 |
|---|---|
| 賃貸借条件コメント | 保証金 賃料3カ月分 |
| 取引種別 | 賃貸 |
| 取引態様 | 媒介 |
この物件のPRポイント
・築3年目の綺麗な4階建てのビルです。
・京阪「香里園」駅より徒歩3分程の立地です。
・小児科・内科・調剤薬局が入居済みで、相乗効果が見込めます。
・適合科目は、耳鼻咽喉科・眼科・皮膚科・整形外科などです。
※ご興味ございましたら、内見など可能ですので是非お問合せくださいませ。
