- 兵庫県
- 医療モール物件
神戸市西区伊川谷医療モール
神戸市内で開業をお考えの先生へ。ビレッジ型医療モール計画。
- 300000162
- 2023年11月14日更新
- 小児科
- 眼科
- 泌尿器科
- 皮膚科
この物件のPRポイント
- 食品スーパー「マルアイ有瀬店」のとなりで認知度抜群
- 診療圏データが良好(人口が多く、競合先が少ない)
- ビレッジ型(一戸建て)の医療モール
- 外来者駐車場は約40台を確保予定
- 内科クリニック、整形外科クリニック開院中、相乗効果が見込める
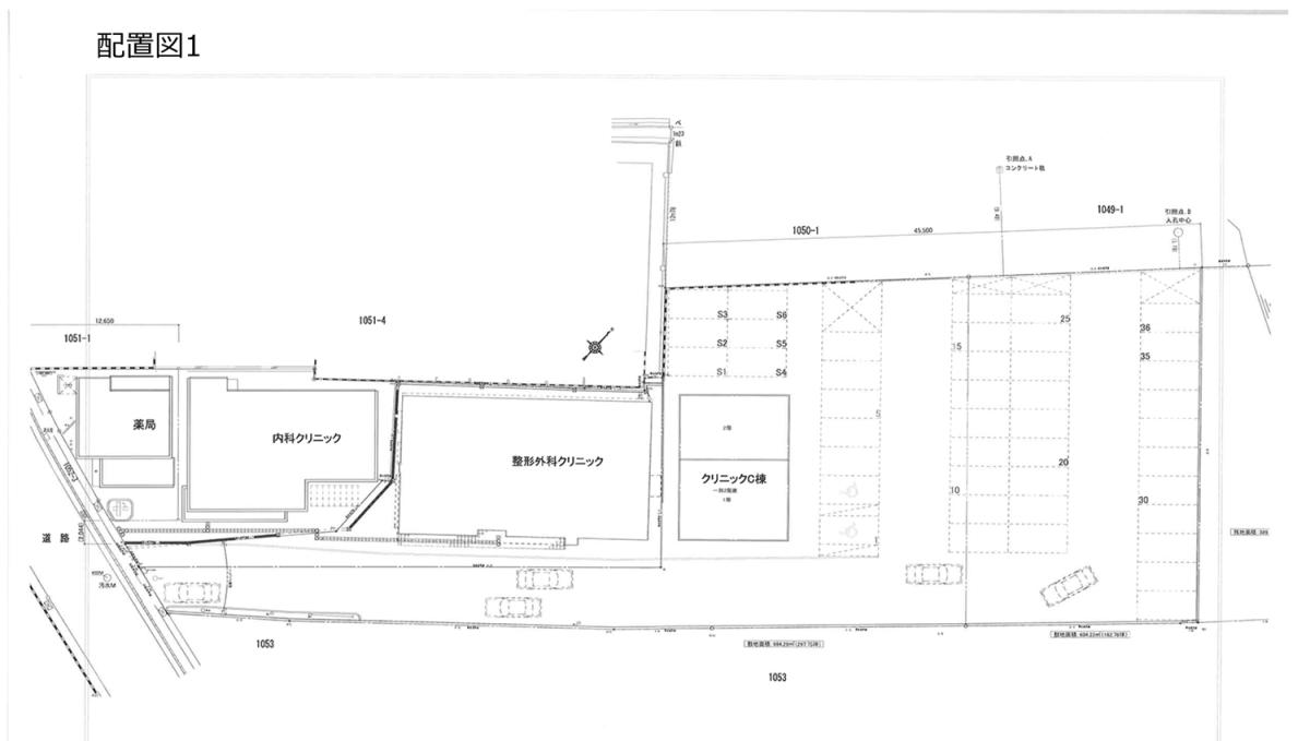
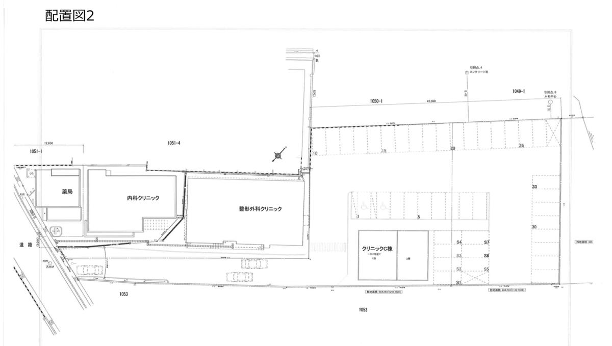
物件概要
不動産情報
| 募集状況 | 募集中 |
|---|---|
| 物件区分 | 医療モール物件 |
| 物件形状 | 一戸建て |
| 募集科目 | 小児科、眼科、泌尿器科、皮膚科 |
| 所在地 | 兵庫県神戸市西区伊川谷町有瀬1052 |
| 交通アクセス | ■お車でお越しの方 ・県道366号線沿い自動車免許試験場より北へ300m ・第2神明道路 大蔵谷I.Cより県道21号線を西明石駅方面へ約750m、「伊川谷有瀬」交差点を左折、南へ約200m、1つめの交差点手前、左側。 ■電車でお越しの方 JR「明石駅」または山陽電鉄「山陽明石駅」より、JR駅の北側にある神姫バス「北1」のりばから、試験場経由のバスに乗車、約16分。 「自動車学校前」より北へ徒歩3分。 |
| 延床面積 | C区画:55坪 ※区画面積の変更はご相談に応じます。 |
| 土地面積 | 2,782.43 m2、841.68 坪 |
| 建物構造 | 鉄骨鉄筋コンクリート |
| 階数 | 1 階建て |
| 駐車場 | 40 台 |
取引条件
| 賃料 | 10,000円/坪(消費税別) |
|---|---|
| 賃貸借条件コメント | 別途、共益費50,000円(消費税別/駐車場代含む) |
| 取引種別 | 賃貸 |
| 取引態様 | 媒介 |
募集区画
診療圏調査
- 半径2km圏内に97,701人の住民が生活していますが、近隣にはクリニックが少なく、当医院モールは、地域住民の重要な日常医療拠点!
- 半径1km圏内は、医療機関が少なく「皮膚科、小児科、眼科、泌尿器科」のニーズが高い立地環境
- 生活道路に面した大型駐車場を完備していることから幅広い地域からの集患も期待できます。(詳細資料は、お気軽にお問合せ下さい。)
ストリートビュー
マップ
エリア情報
アクセス
■お車でお越しの方
・県道366号線沿い自動車免許試験場より北へ300m
・第2神明道路 大蔵谷I.Cより県道21号線を西明石駅方面へ約750m、「伊川谷有瀬」交差点を左折、南へ約200m、1つめの交差点手前、左側
■電車でお越しの方
JR「明石駅」または山陽電鉄「山陽明石駅」より、JR駅の北側にある神姫バス「北1」のりばから、試験場経由のバスに乗車、約16分。
「自動車学校前」より北へ徒歩3分。
ショッピング
食品スーパー「マルアイ有瀬店」のとなりで認知度は抜群です。






